
NordicWindow




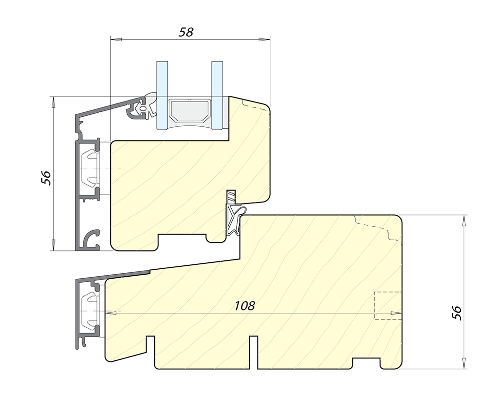
NordicWindow is a system designed by TWT for the production of Scandinavian-style windows. The system makes it possible to produce windows of various types and with different types of openings, fitted with high quality Ipa or Spilka hardware.
NordicWindow frames can be produced in two variants: wooden and wood-aluminium.
Here are the most popular types of exterior openings that can be produced:
Cutting technologies / Cutter systems
Window systems
Resources
Who we are
Cutting technologies / Cutter systems
Window systems
Vat nr: 02434730228
Privacy Settings
This website uses cookies to improve your experience while you navigate through the website.
View the Cookie Policy View the Personal Data Policy
Google Analytics is a web analytics service provided by Google Ireland Limited ("Google"). Google uses the collected personal data to track and examine the usage of this website, compile reports on its activities, and share them with other Google services. Google may use your personal data to contextualize and personalize the ads of its advertising network. This integration of Google Analytics anonymizes your IP address. The data sent is collected for the purposes of personalizing the experience and statistical tracking. You can find more information on the "More information on Google's handling of personal information" page.
Place of processing: Ireland - Privacy Policy
Google Fonts is a service used to display font styles operated by Google Ireland Limited and serves to integrate such content into its pages.
Place of processing: Ireland - Privacy Policy
Google Maps is a maps visualization service provided by Google Ireland Limited. This service is used to incorporate content of this kind on its pages.
Place of processing: Ireland - Privacy Policy